Geperste roostertreden zijn traptreden waarbij het loopvlak wordt opgebouwd vanuit metalen persroosters. Deze roosters zorgen voor een goede grip en voorkomen dat vuil zich ophoopt op de treden. Ze worden vaak gebruikt in industriële omgevingen, zoals fabrieken of magazijnen, waar er veel stof en vuil aanwezig is. Ook kunnen deze traptreden helpen bij het afvoeren van water, waardoor slipgevaar wordt verminderd.
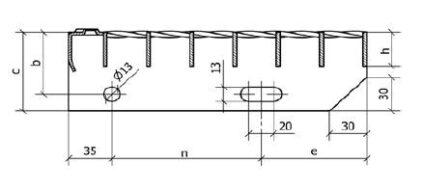
Geperste traptreden worden vervaardigd volgens DIN 24531-1 of op basis van deze norm. Ze bestaan uit een speciaal gevormd aantredeprofiel, een loopvlak van geperste roosters en geperforeerde zijplaten. Om de montage te vergemakkelijken zijn de zijplaten altijd voorzien van een herkenbaar gatenpatroon, dat volledig op maat kan bepaald worden in functie van de trapbomen.
Traptreden worden geproduceerd in (on)verzinkt staal, roestvast staal of aluminium en kunnen op verzoek ook voorzien worden van de gewenste poederlak. Zowat elke maatvoering kan worden besproken. Daarnaast kan een trede ook voorzien worden van een antislip karteling op de staven om extra grip te genereren.
Door het sleufgat van 36 mm zijn de traptreden toe te passen bij een steek van 82 tot 118 mm.
Op verzoek kunnen afwijkende schetsplaten worden aangelast.
Las-Pers heeft een aantal afmetingen op voorraad, hetgeen een snelle levering mogelijk maakt. Een overzicht van deze traptreden vindt u links in het scherm onder documentatie.

