Gedruklaste roostertreden bestaan uit gedraaide dwarsstaven die onder hoge druk in de draagstaven worden geperst en volledig elektrisch worden gelast. Ze worden veelvuldig gebruikt binnen de industriële sector.
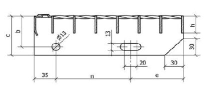
Deze traptreden worden vervaardigd volgens DIN 24531-1 of op basis van deze norm. Ze bestaan uit een speciaal gevormd aantredeprofiel, een loopvlak van geperste roosters en geperforeerde zijplaten. Om de montage te vergemakkelijken zijn de zijplaten altijd voorzien van een herkenbaar gatenpatroon, dat volledig op maat kan bepaald worden in functie van de trapbomen.
Traptreden worden geproduceerd in (on)verzinkt staal, roestvast staal of aluminium en kunnen op verzoek ook voorzien worden van de gewenste poederlak. Zowat elke maatvoering kan worden besproken. Daarnaast kan een trede ook voorzien worden van een antislip karteling op de staven om extra grip te genereren.

